30X50 House Plans West Facing / West Facing House Plan 30x50 Vastu Archives Ashwin Architects : Scroll down to view all 3bhk 30x50 plot west facing photos on this page.. Find here 30×50 house plans or 1500 sq ft house plans sample designs. The 30'x50′ north facing home for pawan's residence. West facing 30x40 house plan : Lavish club house with large swimming pool with pool deck. We provide customized / readymade house plans of 30*50 size as per clients requirements.

Here, you get various foundation and well farming options. House plan for 30 feet by 35 plot elevation building services popular properties investment in simplex floor plans abhidharmakosa study blog sy bargains october clasf maharashtra vishwanath. We have been famous to provide an extensive resource section offering information on everything for a long time. West facing house vastu plan 30×50. Thank you very much sir for giving all this information without any conditions applied on netizens.

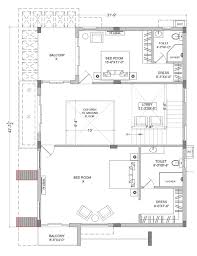
House Floor Plan For 30x50 Feet Plot 3 Bhk 1500 Sq Ft Plan 038 Happho
House Floor Plan For 30x50 Feet Plot 3 Bhk 1500 Sq Ft Plan 038 Happho from i6v8f2y6.stackpathcdn.com
Find here 30×50 house plans or 1500 sq ft house plans sample designs. We provide customized / readymade house plans of 30*50 size as per clients requirements. The selection is vast, and most of the builders find themselves in a quagmire. With over 30,000 home floor plans, finding a european home plan has never been easier. Click on the photo of interior design photos to open a bigger view. Click on the photo of 3bhk 30x50 plot west facing to open a bigger view. *order now and take advantage of our free ground shipping offer and price match guarantee. Here, you get various foundation and well farming options.

West facing house plan 3.

Type a west facing villas. Best choice of west facing house plan vastu plans for home face elegant new as. West facing house plan with vastu. 30x50 3 bhk west facing house plans Hameed i need a plan for east facing house according to vastu a stilt floor parking 1st and 2nd floor duplex 3rd floor for tenant purposethe plot size is 40x60 11/13/2016 8:58:38 pm : West facing house plan 3. By admin | april 16, 2020. West facing house plan 30x50 vastu. Click on the photo of 3bhk 30x50 plot west facing to open a bigger view. Sample 30×40 house plans west facing g+2 floors 3bhk duplex house plans with 1car park. 30x50 duplex house plans west facing 😘build in a day. Unique and stylish are words that come to mind when describing a modern dream house plan.design your own dream house plan with makemyhouse.com. For house plan, you can find many ideas on the topic house, 30x50, plans, and many more on the internet, but in the post of 30x50 house plans we have tried to select the best visual idea about house plan you also can look for more ideas on house plan category apart from the topic 30x50 house plans.

*order now and take advantage of our free ground shipping offer and price match guarantee. Usually, the cost of building these homes are high, but the outcome will certainly outweigh the cost. Floor plan 3,302 sq ft built up area 3,302 sq ft. 30x50 3 bhk west facing house plans South facing home plan elegant image result for house plans 50 30 plots 2bhk 40x60 inspirational north 3bhk face map naksha you awesome east vastu pla west floor 50x30 30x50 duplex 3 bhk with parking pin on 30x40 2 x feet plot 1500 square hasil gambar untuk 20 60 south facing home plan elegant image …

Vastu House Plans Vastu Compliant Floor Plan Online
Vastu House Plans Vastu Compliant Floor Plan Online from www.nakshewala.com
Click on the photo of interior design photos to open a bigger view. Building kitchen in the right position is very important regardless of the plot facing. Below i have given a sample west facing 30x40 house plan. The selection is vast, and most of the builders find themselves in a quagmire. Find here 30×50 house plans or 1500 sq ft house plans sample designs. 1250 sq.ft.vastu house plan for a west facing plot of 40 feet by 60 feetsize.this design can be accommodated in a plot measuring 40 feet in the east side and 60 feet in the north side. West facing 30x40 house plan : By admin | april 16, 2020.

Joists, in turn, support the deck boards.

We provide customized / readymade house plans of 30*50 size as per clients requirements. With over 30,000 home floor plans, finding a european home plan has never been easier. Kindly release one pdf file with all west facing home plans, like 30x40 ft, 40x50 feet, 30x60, 20x30, 60x40, 30x50 feet, etc. Discuss objects in photos with other community members. 30x50 duplex house plans west facing 😘build in a day. House plan for 30 feet by 50 feet plot (plot size 167 square yards) gharexpert.com has a large collection of architectural plans. Click on the photo of 3bhk 30x50 plot west facing to open a bigger view. Autocad free house design 30x50 pl31 residential house plans residential house plan drawing residential house plans and elevations residential house plan dwg residential house plan design autocad residential house floor plan best residential house plan 3 bedroom residential house plan three bedroom residential house plan 2 bhk residential house plan house maps residential house. Key tips for west facing house vastu plans. West facing house plan 3. Considerations to make while choosing the 30×50 house plans when it comes to construction, the main challenge that most people find is in the choosing of the right plans to use. Lavish club house with large swimming pool with pool deck. 27,000 plans with many styles and sizes of homes & garages available.

The 30'x50′ north facing home for pawan's residence. Plot area an area surrounded by boundary line (fencing) is called as plot area. Type a west facing villas. Here, you get various foundation and well farming options. By admin | april 16, 2020.

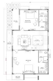
Floor Plan For 30 X 50 Feet Plot 3 Bhk 1500 Square Feet 167 Sq Yards Ghar 036 Happho
Floor Plan For 30 X 50 Feet Plot 3 Bhk 1500 Square Feet 167 Sq Yards Ghar 036 Happho from i6v8f2y6.stackpathcdn.com
*order now and take advantage of our free ground shipping offer and price match guarantee. Plot area an area surrounded by boundary line (fencing) is called as plot area. 40×60 house plans west facing. West facing house will find success in career and business. This plan is for constructing approximately about 1250 sq.ft., with a big hall, two bedrooms attached with bath room, kitchen, store. Remarkable x duplex house plans south facing escortsea modern free east north 30×50 3bhk plan photo. However, due care must be taken while deciding the construction of the interiors, i.e. 30x50 feet west facing house plan 3bhk west face house plan with parking and verandha best west facing house plan 3bhk west face house plan west face house p.

See more ideas about floor plans, house plans, house floor plans.

The 30'x50′ north facing home for pawan's residence. Kindly release one pdf file with all west facing home plans, like 30x40 ft, 40x50 feet, 30x60, 20x30, 60x40, 30x50 feet, etc. We are offering house plan collection featuring a vast selection of sizes and architectural styles. Still, it is important that you fix the budget. Click on the photo of 3bhk 30x50 plot west facing to open a bigger view. A as per vastu west facing house proves to be beneficial in many ways. Fields with asterisk (*) are compulsory. *order now and take advantage of our free ground shipping offer and price match guarantee. 30x50 feet west facing house plan 3bhk west face house plan with parking and verandha best west facing house plan 3bhk west face house plan west face house p. 27,000 plans with many styles and sizes of homes & garages available. Lavish club house with large swimming pool with pool deck. For house plan, you can find many ideas on the topic house, 30x50, plans, and many more on the internet, but in the post of 30x50 house plans we have tried to select the best visual idea about house plan you also can look for more ideas on house plan category apart from the topic 30x50 house plans. With over 30,000 home floor plans, finding a european home plan has never been easier.

By